deutsch
english
vita
skills
contact
300m fussleiste
bilbao
schwimmzentrum
amsterdam
oslo
oslo
ludwig
g&p
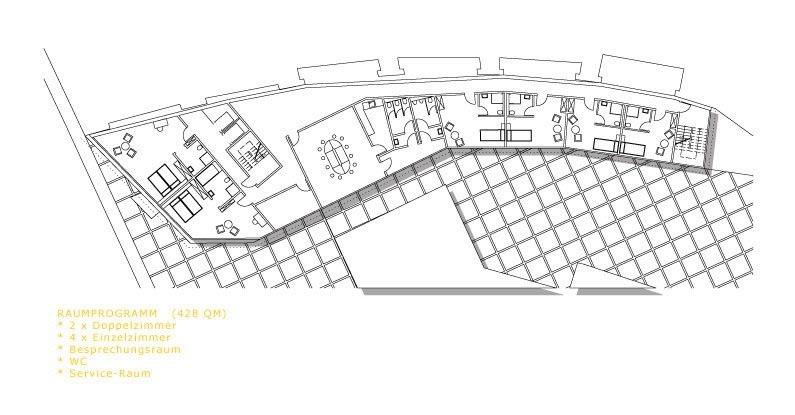
/// hotel bilbao
_5.obergeschoss
hotel bilbao seite 14
hotel bilbao seite 13
hotel bilbao seite 12
hotel bilbao seite 11
hotel bilbao seite 10
hotel bilbao seite 9
hotel bilbao seite 8
hotel bilbao seite 7
hotel bilbao seite 6
hotel bilbao seite 5
hotel bilbao seite 4
hotel bilbao seite 3
hotel bilbao seite 2
hotel bilbao seite 1